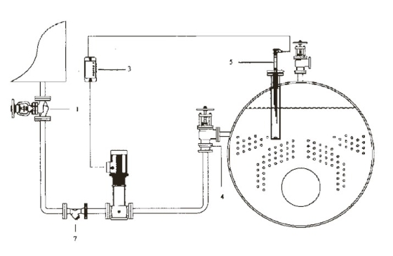
On/Off Seviye Kontrol Sistemi

Gerek besi suyu pompasının çalıştırılması, gerekse düşük ve yüksek su seviyelerinin kontrolünün hassas bir şekilde yapılabilmesi için, kazan içerisine daldırılarak görev yapan on-off seviye kontrol duyargaları üretilmektedir. On-off besi suyu kontrol sistemlerinde su seviyesi, belirtilen alt seviyesine geldiği zaman besi suyu pompası çalıştırılır ve üst seviyeye geldiği zaman durdurulur. Bu sistemin uygulaması basit ve kolay, yatırım gideri diğer sistemlere göre azdır.
Sistemin Özellikleri
Avantajları- Basit ve uygulaması kolay
- Ucuz
- Düşük kapasiteli kazan veya yedek kazanlara uygun
- Her kazana ayrı bir besi pompası gerekir
- Pompanın sık sık devreye girip çıkması sonucunda fazla aşınma meydana gelir; aşınma sistem ömrünü kısaltır.
- Buhar nem oranının yüksek olması